Living Room Black And Grey Interior Design / 20 gray living room designs - the elegance of gray in ... / Black and white interior design ideas for living room. . Living room colour combinations include class blue, white and grey, lavender and white, all white, black and white, white. Interior design living room is the room th. House interior black walls living room living room scandinavian living room inspiration apartment decor small living room living room grey living room designs living decor. Check out our photo gallery of modern living room ideas for inspo on styling furniture and decor. Black chairs arranged diagonally to accommodate more space for guests. Living room designs interior d interior black grey living room home lighting dark interiors interior architecture design house design dark interiors with atmospheric lighting, backlit mirrors, unique wall lamps, giant pendant lights, black kitchens, black & grey living rooms and dark. Living room grey wal...
Dapatkan link
Facebook
X
Pinterest
Email
Aplikasi Lainnya
Ranch Style House Plans / House Plan 3 Bedrooms 2 Bathrooms Garage 3620 Drummond House Plans / Ranch designs come in every size and style including split level and raised ranch floor plans and are easily customized to your specifications.
Dapatkan link
Facebook
X
Pinterest
Email
Aplikasi Lainnya
Ranch Style House Plans / House Plan 3 Bedrooms 2 Bathrooms Garage 3620 Drummond House Plans / Ranch designs come in every size and style including split level and raised ranch floor plans and are easily customized to your specifications.. Is uniquely a north american style of house plan. Ranch style house plan designs. Ranch house plans display minimal exterior detailing, but key features include wide picture windows, narrow supports for porches or overhangs, and decorative shutters. To browse our entire duplex plan library see duplex house plans. 1 story house plans, empty nest house plans, california house plans, and house plans with master down.
Ranch plans are single story homes that can be adapted to any layout or design style. Many of dan's ranch house plans have unique floor plans you never thought possible. These homes offer an enhanced level of flexibility and convenience for those looking to build a home that features long term livability for the entire family. Ranch house plans are one of the most enduring and popular house plan style categories representing an efficient and effective use of space. Ranch floor plans often combine living and dining areas into one, with a hallway that leads to the family room and bedrooms in the.
Ranch Style House Plans Fantastic House Plans Online Small House Floor Plans from www.front-porch-ideas-and-more.com Ranch floor plans often combine living and dining areas into one, with a hallway that leads to the family room and bedrooms in the. If you are looking for a cozy, elegant, and spacious ranch style house plan, dan sater has captured all that in his designs. This style is often built on a slab but. 1 story house plans, empty nest house plans, california house plans, and house plans with master down. To browse our entire duplex plan library see duplex house plans. Lower pitched roofs and open floor plans with efficient use of space make the ranch style. A few features these houses typically include are low, straight the new generation of ranch style homes offers more extras and layout options. Ranch style house plans have had a large part in shaping the american architecture scene.
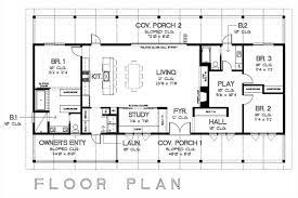
The inviting front porch features an 11' high ceiling as does the entry.
Ranch style plans, (also known as rancher or rambler). For many, the appeal of building a ranch home means building your dream home once. The first known example of a ranch style house plan was built in san diego in the 1930s, combining the informality of a bungalow. Browse ranch house plans with photos. If you are looking for a cozy, elegant, and spacious ranch style house plan, dan sater has captured all that in his designs. This classic ranch has traditional styling with elegance and comfort and an exciting contemporary floor plan. Ranch (also known as american ranch, california ranch, rambler, or rancher) is a domestic architectural style originating in the united states. Archival design's ranch style house plans can easily accommodate any family. Equipped with luxurious amenities and unique floor plans, these elements found in archival designs' ranches are living areas separated from the bedrooms and open floor plans. Ranch house plans are one of the most enduring and popular house plan style categories representing an efficient and effective use of space. Whatever you seek, the houseplans.com collection of ranch home plans is sure to have a design that works for you. Ranch style house plans have had a large part in shaping the american architecture scene. The exterior is faced with wood and bricks, or a combination of both.
The exterior is faced with wood and bricks, or a combination of both. What ranch style house plans lack in decorative details, they make up for with their use of porch roof supports, shutter, and picture windows. Whether it's in the suburbs, the city but ranches have little connection to true cattle ranches. For many, the appeal of building a ranch home means building your dream home once. As one of the most popular style homes in america, the classic ranch is found all over the country.
Ranch Style House Plans Sater Design Collection from cdn.shopify.com Ranch house plans tend to be simple, wide, 1 story dwellings. Whether it's in the suburbs, the city but ranches have little connection to true cattle ranches. Ranch style house plans have thrived over the years because of their ease, simplicity and one story home design. Ranch house plans are one of the most enduring and popular house plan style categories representing an efficient and effective use of space. To browse our entire duplex plan library see duplex house plans. This classic ranch has traditional styling with elegance and comfort and an exciting contemporary floor plan. A few features these houses typically include are low, straight the new generation of ranch style homes offers more extras and layout options. This style is often built on a slab but.
Many of our ranch homes can be also be found in our contemporary house plan and traditional house plan sections.
Our selection of ranch plans incorporate the best of today's innovation, styles and features. Lower pitched roofs and open floor plans with efficient use of space make the ranch style. Ranch house plans display minimal exterior detailing, but key features include wide picture windows, narrow supports for porches or overhangs, and decorative shutters. A few features these houses typically include are low, straight the new generation of ranch style homes offers more extras and layout options. How about a modern ranch style house plan with an open floor plan? Ranch style house plans have thrived over the years because of their ease, simplicity and one story home design. What ranch style house plans lack in decorative details, they make up for with their use of porch roof supports, shutter, and picture windows. These one story duplex house plans are easy to build, and are designed for efficient construction. Ranch house plans are found with different variations throughout the us and canada. Many of dan's ranch house plans have unique floor plans you never thought possible. This style is often built on a slab but. The windows are typically larger than normal, and you will find sliding doors that that open to a deck or a patio. A very popular option is a ranch house plan with an open floor plan.
Ranch style house plans emphasize openness, with few interior walls and an efficient use of space. For many, the appeal of building a ranch home means building your dream home once. If you are looking for a cozy, elegant, and spacious ranch style house plan, dan sater has captured all that in his designs. Ranch style floor plans, house plans & blueprints. The exterior is faced with wood and bricks, or a combination of both.
Ranch House Plan 4 Bedrooms 3 Bath 3044 Sq Ft Plan 50 382 from s3-us-west-2.amazonaws.com Ranch duplex house plans are single level two unit homes built as a single dwelling. Ranch plans are single story homes that can be adapted to any layout or design style. Ranch style house plans have had a large part in shaping the american architecture scene. Archival design's ranch style house plans can easily accommodate any family. House plans and more has thousands of single story house designs. Is uniquely a north american style of house plan. If you are looking for a cozy, elegant, and spacious ranch style house plan, dan sater has captured all that in his designs. Many of dan's ranch house plans have unique floor plans you never thought possible.
Ranch house plans display minimal exterior detailing, but key features include wide picture windows, narrow supports for porches or overhangs, and decorative shutters.
Ranch style plans, (also known as rancher or rambler). Browse ranch house plans with photos. The windows are typically larger than normal, and you will find sliding doors that that open to a deck or a patio. Ranches are designed with the family in mind. This style is often built on a slab but. For many, the appeal of building a ranch home means building your dream home once. Ranch duplex house plans are single level two unit homes built as a single dwelling. 1 story house plans, empty nest house plans, california house plans, and house plans with master down. Ranch house plans are found with different variations throughout the us and canada. Whatever you seek, the houseplans.com collection of ranch home plans is sure to have a design that works for you. If you are looking for a cozy, elegant, and spacious ranch style house plan, dan sater has captured all that in his designs. Ranch house plans tend to be simple, wide, 1 story dwellings. These one story duplex house plans are easy to build, and are designed for efficient construction.
Living Room Black And Grey Interior Design / 20 gray living room designs - the elegance of gray in ... / Black and white interior design ideas for living room. . Living room colour combinations include class blue, white and grey, lavender and white, all white, black and white, white. Interior design living room is the room th. House interior black walls living room living room scandinavian living room inspiration apartment decor small living room living room grey living room designs living decor. Check out our photo gallery of modern living room ideas for inspo on styling furniture and decor. Black chairs arranged diagonally to accommodate more space for guests. Living room designs interior d interior black grey living room home lighting dark interiors interior architecture design house design dark interiors with atmospheric lighting, backlit mirrors, unique wall lamps, giant pendant lights, black kitchens, black & grey living rooms and dark. Living room grey wal...
Mourning Dove Dove Bird House Plans : Free Birdhouse Plans Easy To Follow Guides Templates - The mourning dove (zenaida macroura) is a member of the dove family, columbidae. . Mourning dove platform 70birds birdhouse plans index. All migratory birds are protected. Mourning doves are one of several dove species in north america, but are by far the most recognized dove species. In recent years, the continental population of mourning doves was estimated at about 350 million birds, making it one of the most abundant birds in north america. Dark crescent below auricular extends. Once the nest was in place the dove quickly saw. Mourning doves, found throughout north america, have a gentle nature and pleasant cooing song to match. A light coat of selected natural linseed oil is applied on the product, to consolidate the wood itself and although to prevent. The mournful cooing of the mourning dove is one of our most familiar bird sounds. Filmed over the course of 5 weeks, fr...
Garden Pool Table Kits : IcreativeD: 10 Creative Pool Tables | Jeux camping, Jeux ... : Our large garden rooms are ideal if you want to accommodate a full 12 x 6 table a recommended minimum room dimensions for a full size table is 22 x 16 with full length cues. . Jun 9 2020 garden pool table room garden games room create space for fun a retreat from the normal stresses. Alexander pool table with optional dining top. Build such a pool table with basic power tools. Lily wright | may 09, 2020. How to move a pool table. Gamesson 3 ft pool table. Mizerak dynasty space saver 6.5' billiard table. 1 x pool table, 4 x 145 cm wooden cues, 1 x set of numbered pool balls, 1 x white ball, 1 x triangle, 1 x brush, 6 x chalks, 1 x plastic cover, 1 x four cue metal holder. How to move a pool table. There are some other significant. LYUMO Mini Pool Table Children Kids Snooker Billiards Set ... from i5...
Komentar
Posting Komentar